Stgt-Zuffenhausen · Pauluskirche
Klick ins Bild vergrößert
Inhalt
Allgemeine Hinweise · Links
- Außen
- Innen
- Innenbemalung: Polykonie
- Die linke Galeriewand: Die anvertraute Schöpfung
- Wandfries links oben: Der Prophet Jona
- Die rechte Galeriewand: Der Erlöser Jesus
- Wandfries rechts oben: Die versöhnte Welt
- Orgelempore: Das Paradies im Rücken
- Die Orgel
- Kreuzgewölbe "Himmelfahrt"
- Altar, Taufstein, Chor u.a.
- Chorfenster
- Impressum
Allgemeine Hinweise · Links
Im Internet findet man auf der Website der Kirchengemeinde Informationen zur Geschichte und zum Bauwerk.
Ein sehr schön gestaltetes, farbiges Faltblatt gibt Auskunft über die Kirche und ihre Ausstattung. Im Pfarrbüro erhältlich. Nachfolgend wird hieraus zitiert ohne besondere Quellenangabe..
Zum 100jährigen Jubiläum im Jahr 2003 erschien eine Festschrift mit einer ausführlichen Chronik und vielen weiteren Beiträgen. Hier zum Download.
Informationen auch auf www.kirchbau.de
Außen
Der Stil der Außenfassade ist dem Historismus verpflichtet. Er lässt sich sowohl romanisch als auch gotisch charakterisieren. Bei Fenster- und Türöffnungen wie auch den umlaufenden Blendbogenfriesen findet als romanisches Element eine durchgehende Anwendung des Rundbogenfrieses statt.
Die gotischen Merkmale sind: der plastische Bauschmuck der Fassade, die Ausbildung von vorgeblendeten Giebeln mit aufgesetzter Palmette bzw. Kreuzblumen über den Portalen und über der 6-teiligen Rosette.
Gebaut ist die Kirche mit »Dopfersteinen«, die in Wasseralfingen/ Aalen aus der Hochofenschlacke der königlichen Hüttenwerke gefertigt wurden.
Leuchttisch: Klick in ein Bild öffnet ihn und zeigt die Bilder groß
Innen
Die Kirche ist über einem kreuzförmigen Grundriss errichtet. Der Chorraum weist nach Süden.
Die Grundform des griechischen Kreuzes (alle Seiten gleichlang) ist typisch für eine evangelische Kirche der damaligen Zeit. Die Kreuzarme sind verhältnismäßig kurz ausgebildet, sodass im Innern der Eindruck eines Zentralraumes entsteht. Infolgedessen sind Altar und Kanzel der Gemeinde möglichst nahe gerückt - ganz im Sinne des »Priestertums aller Gläubigen«.
Leuchttisch: Klick in ein Bild öffnet ihn und zeigt die Bilder groß
Innenbemalung: Polykonie
Dem Cannstatter Künstler Willy Wiedmann (*1929) ist die Innenbemalung der Pauluskirche zu verdanken: Er versah die Brüstungen der Galerien und die Orgelempore mit Friesen. Wiedmann bezeichnet seinen Malstil als »Polykon-Stil« (Mehrfarbenmalerei). Dabei spielen Winkel in 45 oder 90 Grad eine besondere Rolle. Die Kompositionen fließen so über mehrere Bildflächen ineinander.
Am Sonntag, 28. Februar 2016 fand auf Initiative des Sohnes Martin Wiedmann und des Pfarrers Dieter Kümmel ein Gedenkgottesdienst statt, in welchem Pfarrer Kümmel über die Bilder Wiedmanns predigte, insbesondere das Bild der rechten Emporenseite "Das große Festmahl" deutete. Dankenswerterweise hat er seinen Predigttext "Versöhnte Welt" zur Verfügung gestellt - hier zum Download.
Die linke Galeriewand: Die anvertraute Schöpfung
Die biblische Schöpfungsgeschichte wird exakt in Bildersprache übersetzt. Trennung von Licht und Finsternis, Himmel und Wasser, Meer und Land. Dann die Schaffung von Pflanzen, Sonne, Mond und Tieren und - ganz zuletzt - vom Menschen und am Ende - als »Krone der Schöpfung« - der Sabbath, das Ausruhen, die Freude Gottes an seinem Werk. Der Künstler hat in die Schöpfungsgeschichte bedrohte Tiere wie Marienkäfer, Elefanten und Libellen eingezeichnet und fordert damit zum gewissenhaften Umgang, zur »Ehrfurcht vor allem Lebendigen« auf.
Klick ins Bild vergrößert
Leuchttisch: Klick in ein Bild öffnet ihn und zeigt die Bilder groß
Wandfries links oben: Der Prophet Jona
Der Künstler hat die zentralen Motive der Jonageschichte in den berühmten Wal eingezeichnet, in dem Jona drei Tage und drei Nächte verbringen muss, weil er sich dem Auftrag Gottes, der bösen Stadt Ninive das Strafgericht anzusagen, entziehen will.
Mittendrin sind Menschen zu sehen, die ihr Tun bereuen und deshalb von Gott dann eine neue Chance bekommen. Der König von Ninive hat die Krone abgelegt, er fastet und geht als Zeichen der Reue in »Sack und Asche«. Sogar die Tiere zeigen Zeichen der Reue. Jona ärgert sich über die Geduld der Liebe Gottes. Da lässt Gott durch einen Wurm die Staude verkümmern, die Jona vor der Sonne schützt. Als sich Jona darüber erzürnt zeigt, sagt Gott: »Dich jammert die Staude und mich sollte nicht jammern Ninive, eine Stadt mit 120 000 Menschen ... dazu auch die vielen Tiere?«
Klick ins Bild vergrößert
Die rechte Galeriewand: Der Erlöser Jesus
Neutestamentliche Jesus-Geschichten sind das Thema dieser Seite. Gezeigt wird dabei, wie das »Reich Gottes« durch Jesu Wirken anbricht, durch ihn Heilung geschieht.
Den Rahmen bilden Wassergeschichten: rechts die Taufe Jesu durch Johannes, links außen die Sturmstillung Jesu. Die zahlreichen Bilder dazwischen zeigen das neue Leben, das Jesus bringt: »Blinde sehen und Lahme gehen, Aussätzige werden rein und Taube hören, Tote stehen auf und Armen wird das Evangelium gepredigt« (Matthäus 11,5).
Klick ins Bild vergrößert
Leuchttisch: Klick in ein Bild öffnet ihn und zeigt die Bilder groß
Wandfries rechts oben: Die versöhnte Welt
Dem Fries liegt die biblische Verheißung (Jes 11; Mt 8,11) zugrunde, dass am Ende der Tage aus allen Himmelsrichtungen die Menschen zusammenkommen, um gemeinsam am Tisch Gottes zu essen und zu trinken und friedvoll festlich - feiernd zusammen zu sein. Eine versöhnte Welt von Jung und Alt, Schwarz und Weiß, von Mensch und Tier ist auf dem Fries zu sehen. Alles Trennende, aller Streit ist überwunden. Der Künstler verlagert die Verheißung übrigens in die Gegenwart: Zuffenhäuser Bürger hat er in das Bild »eingemalt«.
Am Sonntag, 28. Februar 2016 fand auf Initiative des Sohnes Martin Wiedmann und des Pfarrers Dieter Kümmel ein Gedenkgottesdienst statt, in welchem Pfarrer Kümmel über die Bilder Wiedmanns predigte, insbesondere das Bild der rechten Emporenseite "Das große Festmahl" deutete. Dankenswerterweise hat er seinen Predigttext "Versöhnte Welt" zur Verfügung gestellt - hier zum Download.
Klick ins Bild vergrößert
Orgelempore: Das Paradies im Rücken
Die Welt »jenseits von Eden« wird uns auf diesem Fries vor Augen geführt. Mitten im Zentrum steht der Lebensbaum des Paradieses. Starke Engels-Mächte versperren dem Menschen die Rückkehr, er muss nun »jenseits von Eden« leben.
Auf beiden Seiten sind die Folgen zu sehen. Die rechte Seite zeigt im Gegensatz zum Lebensbaum einen dürren, abgestorbenen Baum, Symbol für die gefährdete Schöpfung, die Sintflut bedroht das Leben. Der Mensch versucht, seine Geschichte selbst in die Hand zu nehmen, den Himmel zu erobern (Turmbau zu Babel). Er spricht andere schuldig, verkennt dabei aber seine eigene Schuld. Bis heute ist der Tanz ums »Goldene Kalb« Symbol für die Geldgier des Menschen.
Mit Kain und Abel begann die Geschichte der Gewalt und des Terrors, die bis in die Gegenwart eine grausame Fortsetzung findet. Ganz aussen ist Jesus zu sehen: Er, der Frieden, Gerechtigkeit und Barmherzigkeit gelehrt und gelebt hat (Matthäus 5), wird aus der Welt regelrecht herausgedrängt.
Klick ins Bild vergrößert
Leuchttisch: Klick in ein Bild öffnet ihn und zeigt die Bilder groß
Die Ausmalung der Pauluskirche Zuffenhausen markiert den Startpunkt des Lebenswerks von Willy Wiedmann: die gesamte Bibel (AT und NT) als Bilderbibel vorzulegen. Die Arbeit zog sich über 16 Jahre hin (1984 - 2000) und besteht aus über 3300 Blättern. Dies monumentale Werk gelangte erst nach Wiedmanns Tod (2013) an die Öffentlichkeit durch seinen Sohn und seine Tochter. In der Zwischenzeit kann man "The Wiedmann Bible" auf DVD, via Apps u.a. "lesen". Der Besuch der Website wiedmannbibel sei nachdrücklich empfohlen.
Besucher des Gedenkgottesdienstes am 28.2.2016 konnten das Gesamtkunstwerk im Original bewundern, zuvor war es in Stuttgart beim Deutschen Evangelischen Kirchentag 2015 ausgestellt.
Die Orgel
Die 1990 neuerbaute, dreimanualige Mühleisen-Orgel in der Pauluskirche Stuttgart-Zuffenhausen zählt zu den hervorragenden Orgelneubauten der jüngsten Zeit.
Das künstlerisch und handwerklich bestens ausgeführte Instrument mit seiner süddeutsch-französischen Disposition besitzt Ausstrahlung auf die ganze Region. Die Akustik der Pauluskirche ist für Orgelmusik prädestiniert.
Über die Musik im Gottesdienst hinaus wird das Instrument von den Besuchern und Interpreten der 1990 gegründeten internationalen Konzertreihe »Stuttgarter Orgel-Matinee« geschätzt. Die Matinee-Reihe – als Bestandteil des kirchenmusikalisch-kulturellen Lebens der Landeshauptstadt – verzeichnet mit wachsenden Besucherzahlen sehr erfreuliche Akzeptanz.
Am 1. Advent, 27. November 2011 wurde die erweiterte Orgel in einem Festgottesdienst in der Pauluskirche eingeweiht.
Disposition der neuen Orgel
|
Hauptwerk = II. Claviature (C-g³) |
Schwellwerk = III. Claviature (C-g³) |
Brustwerk = I. Claviature, dynamisch abstufbar (C-g³) |
Pedalwerk (C-f1) |
|---|---|---|---|
|
1. Bourdon 16' 2. Principal 8' 3. Suavial 8' 4. Rohrflöte 8' 5. Gamba 8 6. Octave 4' 7. Blockflöte 4' 8. Quinte 2 2/3' 9. Octave 2' 10. Mixtur 5fach 1 1/3' 11. Cornet 5fach 8' (*) 12. Trompette 8' 13. Koppel III / II 14. Koppel I / II |
15. Montre 8' 16. Flûte 8' 17. Salicional 8' 18. Voix céleste 8' 19. Prestant 4' 20. Flûte octaviante 4' 21. Nazard 2 2/3' 22. Quarte de Nazard 2' 23. Tierce 1 3/5' 24. Plein jeu 5fach 2' 25. Basson 16' 26. Trompette harmonique 8' 27. Hautbois 8' 28. Tremblant 29. Koppel II / III |
30. Copel 8' 31. Rohrflöte 4' 32. Schweizerpfeife 2' 33. Sesquialtera 2fach 34. Quinte 1 1/3' 35. Octävlein 1' 36. Cromorne 8’ 37. Kanaltremulant 38. Koppel III / I |
39. Principal 16' 40. Subbaß 16' 41. Octave 8' 42. Gemshorn 8' 43. Violoncello 8’ (*) 44. Choralbaß 4' 45. Quintbass 10 2/3' (*) 46. Bombarde 16' 47. Trompetenbass 8' (*) 48. Clairon 4' (*) 49. Koppel III / Pedal 50. Koppel II / Pedal 51. Koppel I / Pedal |
Mechanische Spiel- und Registertraktur
(*) Register vakant
Werkstatt für Orgelbau Mühleisen Leonberg 1990
Disposition: Hans-Rudolf Krüger in Zusammenarbeit mit KMD Volker Lutz und der Orgelbauwerkstatt.
Kreuzgewölbe "Himmelfahrt"
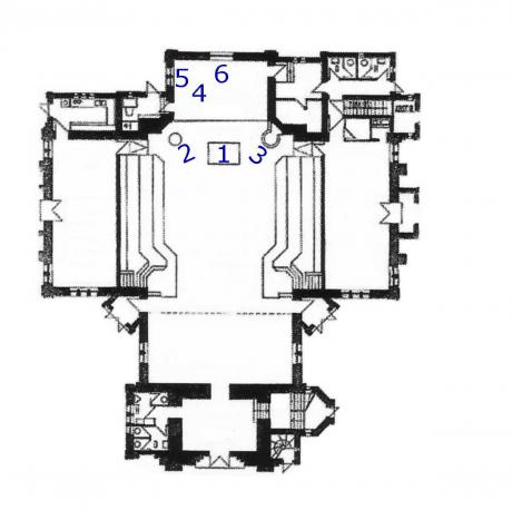
Altar, Taufstein, Chor u.a.
.
.
1 Altar
2 Taufstein
3 Kanzel
4 Kreuz
5 Glasfenster (Ost)
6 Glasfenster (Süd) "Pfingsten" (Oehler)
Klick ins Bild vergrößert
Blick von der Orgelempore zum Chor
Chorfenster
Chorfenster von Christian Oehler: Pfingsten
.
.
Nach dem Wiederaufbau erhielt die Kirche im Jahre 1956 wieder einen künstlerischen Schwerpunkt: das acht Meter hohe Chorfenster des Stuttgarter Kunstmalers Christian Oehler (* 1909 Bad Cannstatt, + 1986 Netstal /Schweiz) Es ist das erste ungegenständlich konzipierte Betonglasfenster, das für einen kirchlichen Raum geschaffen wurde.
Thema des Fensterbildes ist Pfingsten, das mit expressionistischer Wucht entfaltet wird: eine bizarre Farbexplosion, Glas in Beton. Kantig. Monumental. Reiner Rhythmus der Freude. Viel Blau. Violett. Und etwas Gelb. Wie Strahlen. Ein Blitz. Wenig Rot. Die Gläser massig, eckig, scharf ausgeführt. Ein Hoffnungs-Bild: Licht leuchtet in die Welt hinein, die - wider allem Augenschein - nicht sich selbst überlassen ist.
Chorfenster · Einzelbilder (Diashow)
Diashow: Klick in Bild startet die Diashow
Impressum
Pauluskirche Stuttgart - Zuffenhausen fotografiert am 10.10. + 24.10.2014
Auf www.kirchen-online.com veröffentlicht am 30.12.2014
Ergänzungen (Wiedmann-Bibel) am 21.03.2016
(c) 2016 Foto-Kunst Andreas Keller
Links zuletzt überprüft am 03.06.2022
.
Zum Hauptmenü · Kirchen und Kapellen...
.
.
.
.
.




























































