Neckargerach · St. Afra
Klick ins Bild vergrößert
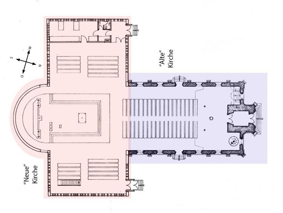
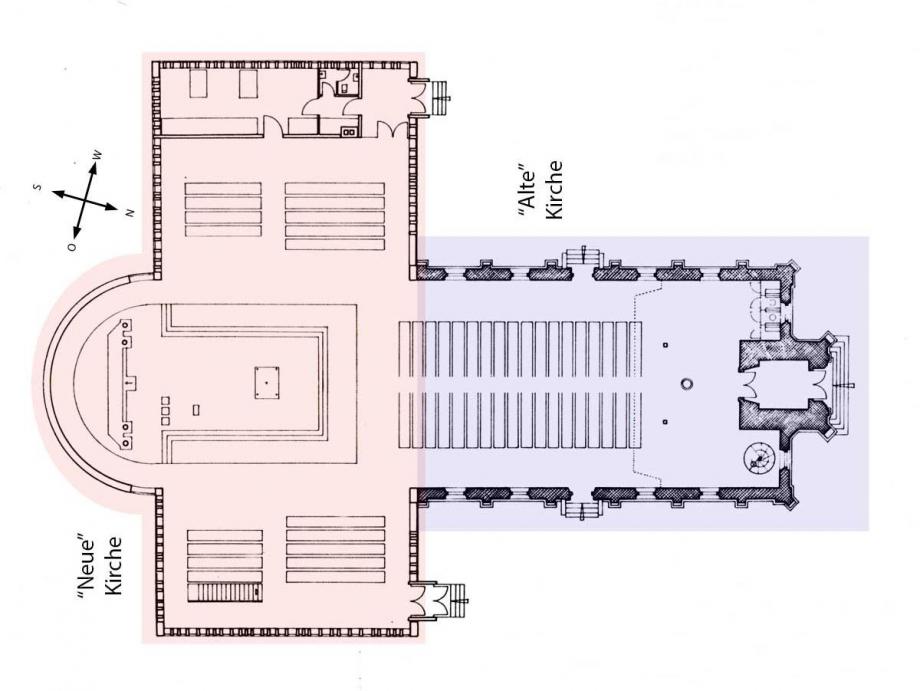
Man vergleiche die nur wenige Kilometer entfernte Kirche St. Laurentius in Obrigheim mit St. Afra. Hochinteressant, wie in beiden Fällen eine "alte" Kirche erweitert wurde durch einen Neubau. Beide Male - die Erweiterungen erfolgten 1970 (St. Afra ) / 1983 (St. Laurentius) - wurde mit Sichtbeton gebaut und großzügige, beeindruckende Lichtkonzeptionen im Neubau verwirklicht. In Neckargerach wurde die Ausrichtung der Kirche beibehalten (N - S), in Obrigheim von N - S auf W - O gedreht. In Neckargerach behielt die "alte" Kirche die Funktion des Hauptschiffes, angebaut wurde ein mächtiges Querschiff und ein neuer Chor (für das wertvolle barocke Retabel). In Obrigheim wurde die Ostwand der alten Kirche aufgebrochen und ein neues Schiff nach Osten gebaut. Dadurch fungiert die alte Kirche mit seiner - nun deplatziert wirkenden - Empore auf der Nordseite als Appendix für den Neubau...
Die Kirchgemeinde St. Afra gehört zur Seelsorgeeinheit Neckartal-Hoher Odenwald Edith Stein mit den Pfarreien: St. Johannes Nepomuk, Eberbach · St. Josef, Eberbach · St. Afra, Neckargerach · St. Maria, Waldbrunn
Die heutige Kirche stammt in ihrem älteren Teil aus den Jahren 1848/50. Überraschenderweise ist sie der zweite Bau, der innerhalb von nur zehn Jahren am selben Platz errichtet wurde. Der erste war 1838/40 erstellt worden. Bald nach der Benedizierung zeigten sich jedoch bedenkliche Risse im Mauerwerk. 1846 musste die Kirche geschlossen und abgetragen werden. Im Juni 1848 legte man den Grundstein ein zweites Mal und konnte 1850 den Bau schließlich erneut benedizieren. Als nach dem zweiten Weltkrieg die Zahl der Gläubigen so stark angewachsen war, dass die Sitzplätze nicht mehr ausreichten, musste man an einen Erweiterungsbau denken. Am 15. August 1970 konnte dieser seiner Bestimmung übergeben werden.
Quelle: Website der Gemeinde Neckargerach
Im Verlag Schnell & Steiner erschien 1973 unter der Nr. 989 ein kleiner Kirchenführer (Fotos noch alle in s-w), dem man interessante Informationen entnehmen kann.
Bislang keine Informationen auf www.kirchbau.de
Im Jahr 1976 gab die Gemeinde Neckargerach einen sehr informativen Band heraus:
FRITZ LIEBIG
1000 Jahre NECKARGERACH
1200 Jahre GUTTENBACH
aus ihm wird rechts zur Geschichte 1556 - 1690 und unten zu den Glocken mit freundlicher Genehmigung zitiert.
Hier zum Download eine ausführliche Beschreibung der Kirche St. Afra
Informationen zur Hl. Afra aus dem Oekumen. Heiligenlexikon
Die nachreformatorische Zeit
1556 wurden außer Neckargerach u. a. Neckarelz, Lohrbach, Binau und Eberbach reformiert. Das Luthertum kam an die Macht.
1559 wandte sich die Kurpfalz unter Friedrich III. dem strengsten Kalvinismus zu. Bei geringster Abweichung wurden harte Kirchenstrafen verhängt. Der Geistliche Inspektor Johann Sylvan, der die göttliche Dreieinigkeit bezweifelt hatte, wurde zum Tode verurteilt und 1572 auf dem Marktplatz in Heidelberg enthauptet.
1576 brachte Ludwig VI. die Rückkehr zum lutherischen Glauben. Kein Kalvinist durfte die Leiche seines Vaters begleiten. Universitätslehrer verloren ihr Amt. Geistliche wurden vertrieben.
1583 kam mit Johann Kasimir ein unerbittlicher Kalvinist an die Regierung. Ober 400 lutherische Geistliche wurden entlassen.
1592 wurde Friedrich IV. Pfalzgraf und 1608 das Haupt der evangelischen Union.
1610 trat mit Friedrich V. wiederum ein Kalvinist die Herrschaft an. Er führte 1618 sein Land in die dreißig Jahre dauernde kriegerische Auseinandersetzung der Bekenntnisse.
1622 kamen mit dem General Tilly katholische Ordensgeistliche hierher.
1631 brachten die Schweden den Protestantismus zurück.
1634 begann mit der Besetzung unserer Gegend durch die Kaiserlichen eine neue Rekatholisierung. Alle lutherischen und reformierten Pfarrer wurden vertrieben.
1648 wurde unter dem Kalvinisten Karl Ludwig vorübergehend eine religiös duldsame Zeit eingeleitet.
1685 übernahm mit Philipp Wilhelm die katholische Linie Pfalz-Neuburg die Regierung und bestimmte bis zum Ende der Kurpfalz den religiösen Kurs.
1690 wurde mit Johann Wilhelm die Festigung des katholischen Einflusses eingeleitet.
Die Untertanen konnten feststellen, daß sie in vier Generationen neunmal das Bekenntnis hatten wechseln müssen.
Den Konfessionsfrieden haben erst das 19. und das 20 Jahrhundert allmählich hergestellt. Ein Abbild der unseligen Zerrissenheit zwischen den christlichen Bekenntnissen zeigt die eigene dörfliche Vergangenheit.
Außen
.
A B C - Zugänge von Norden, Westen, Süden
1 Altar
2 Hochaltar (Retabel)
3 + 4 St. Afra
5 Josef
6 Maria
7 + 8 Taufstein & Osterkerzenständer
9 Wand-Kerzenhalter & Vortragekreuz
10 Kreuzigungsgruppe
11 Historischer Taufstein
12 Apostelfiguren in Eingangshalle
Altar, Mensa, Ambo, Leuchter und Osterleuchter von Gisela Bär (Pforzheim).
Klick in ein Bild formatiert auf Bildschirmgröße
Innen (Überblick I)
Die Klais-Orgel
Neckargerach St. Afra erbaut 1973
Information Februar 1976
Johannes Klais Orgelbau KG Bonn
Prospekt:
P. Albert Hohn OSB - Stift Neuburg, Heidelberg
Disposition:
P. Albert Hohn OSB und Hans Gerd Klais
Bei aller Selbständigkeit der einzelnen Werke einer Orgel, darf man im Dispositionsentwurf nie die Ergänzungsmöglichkeiten durch Koppeln außer acht lassen. Hauptwerk und Pedal sollen ein Ensemble ohne Verdoppelungen gleicher Grundstimmen ergeben.
Die sonore Wucht der Bässe überzeugt durch die klare und deutliche Ansprache im Grundton. Nicht nur der Pincipalbaß 16', auch der Subbaß 16' zeichnet vernehmlich sein Thema. Den beiden großen Holzregistern steht im Manual das schlankere Quintatön 16' gegenüber, ab ds Metall. Mit der Holzflöte 8' zusammen bringt es den Effekt eines Manual-Principal 16' hervor. Dem Octavbaß 8' in Holz entspricht der edle Hauptwerks-Zinnprospekt. Hier hören wir endlich den Silbermannprincipal 8' in voller Mensur, man wird nicht müde ihn zu spielen. Der Prospekt der oberen Felder ist als voce umana schwebend zum Principal gestimmt. Die Holzflöte 8' rundet merklich den vollen Principalklang. Solistisch gespielt, erfreut der kultiviert perlende Ansatz, der sich mit der oktavierenden Holztraverse noch steigert. Gemshorn 8' ist die ideale Pedalstimme für jede sparsame und lichte Trioregistrierung. Tenoroctav 4' — allein oder zusammen mit Rauschpfeife 2 2/3', 2', 1 1/3’ — intoniert den durchgreifenden Cantus firmus. Hier wird auch das Plein jeu verankert, das im Hauptwerk mit Octav 4', Superoctav 2' und Mixtur 1 1/3', 1', 2/3’, 1/2' zur höheren Oktav aufsteigt. Cornet 8', 4' 2 2/3’, 2', 1 3/5' spricht im strahlenden Principalcharakter, so daß Grand jeu und Plein jeu sich zum homogenen Tutti vereinen, akzentuiert von der hellschmetternden Trompete 8', ruhend auf einer großangelegten Posaune 16'.
Die Register des Schwelloberwerks und des Rückpositivs stehen selbstverständlich zueinander und zum Hauptwerk auch in wohlproportionierten Beziehungen. Von den beiden Fundamentregistern ist das eine ganz aus Holz, das andere aus Metall. Auf Tenor-c wird das streichende Salicional 8' selbständig. Rohrgedackt und Rohrflöte sind in den Mensuren und durch die Länge und Weite der Röhrchen unterschieden. Der Prospektpraestant 4' des Rückpositivs variiert den Hauptwerksprincipal. Nach italienischem Vorbild im Echowerk leicht konisch, ist der Spitzpraestant 4' mit seinem verbindlichen Klang doch ein markantes Stimmregister geblieben. In der höheren Oktav entspricht diesem die konische Waldflöte 2' des Rückpositivs. Octavin 2' — ab c überblasend — vollendet brillant die Reihe der Soloflöten des Hauptwerks. Der Cornet décomposé — Rohrgedackt 8', Spitzprincipal 4', Quinte 2 2/3', Octavin 2', Terz 1 3/5' — antwortet dem Grand Cornet. Larigot 1 1/3' rechnet auch als tiefster Chor des Scharff 4f 1', wie Sifflet 1' zur Cymbal 4f 2/3’ gehört. Beide durchlaufende Reihen überglänzen den höchsten Diskant der gemischten Stimmen. Die Vox humana 8' — Dulcianregel mit langen Stiefeln — wirkt feierlich im getragen polyphonen Chor. Konische Spitzen haben auch die beinahe konstant weiten Becher des franz. Cromhorn 8', die Baßenergie wird durch die leicht trichterförmigen Körper C-H gesteigert. Die eingezogenen oberen Trichter des franz. Hautbois 4' sind weiter geworden, der Klang ist natürlicher.
Diese überschaubare, individuelle Vielfalt von doch nur 34 Stimmen ergibt den reichen Gesamtklang, der den hohen und weiten Kirchenraum wirklich zu füllen vermag. Hier wird die Orgel zum Erlebnis.
Quelle: Website der Orgelbaufirma Klais
Disposition
|
I. Rückpositiv C-g3 |
II. Hauptwerk C-g3 |
III. Oberwerk C-g3 |
Pedal C-f1 |
|---|---|---|---|
|
Holzgedackt 8' Praestant 4' Rohrflöte 4' Waldflöte 2' Larigot 1 1/3' Scharff 4f 1' Cromhorn 8' |
Quintatön 16' Principal 8' Bifaria ab ds 8' Holzflöte 8' Octave 4' Holztraverse 4' Superoctave 2' Cornet ab a 5f 8' Mixtur 4f 1 1/3' Trompete 8' |
Rohrgedackt 8' Salicional 8' Spitzpraestant 4' Quinte ab c 2 2/3' Octavin 2' Terz ab c 1 3/5' Sifflet 1' Cymbel 4f 2/3' Vox humana 8' Hautbois 4' |
Principalbaß 16' Subbaß 16' Octavbaß 8' Gemshorn 8' Tenoroctav 4' Rauschpfeife 4f 2 2/3' Posaune 16' |
Innen (Überblick II)
Klick in ein Bild formatiert auf Bildschirmgröße
Der Hochaltar
-
-
-
Das barocke Retabel
stammt aus der Kapuzinerkirche Mannheim, welche 1838/39 abgebrochen wurde. Entstanden wahrscheinlich um 1760 nach einer Zeichnung von L. di. Quaglio, Statuen von Johannes von den Branden, Altarblatt von A. Bernardini.
Beim Kauf 1840 ursprünglich zu breit und daher verstümmelt, wurde es wieder für den Neubau 1970 in die Originalgröße und Ausstattung rekonstruiert und restauriert.
-
Leuchttisch: Klick in ein Bild öffnet ihn und zeigt die Bilder groß
Hochaltar - Details
Leuchttisch: Klick in ein Bild öffnet ihn und zeigt die Bilder groß
Austattung Chor und Querschiff
Kreuzigungsgruppe (18. Jh. - Südwand)
Leuchttisch: Klick in ein Bild öffnet ihn und zeigt die Bilder groß
Kreuzigungsgruppe - Details
Historischer Taufstein · Apostel in der Eingangshalle
Leuchttisch: Klick in ein Bild öffnet ihn und zeigt die Bilder groß
Kreuzweg
Die Glocken
Impressum
Neckargerach · St. Afra fotografiert am 18.02.2014
Auf www.kirchen-online.com veröffentlicht am 02.03.2015
(c) 2015 Foto-Kunst Andreas Keller
Links zuletzt überprüft am 06.06.2022
.
.
.
.
.
Zum Hauptmenü · Kirchen und Kapellen...
.
.
.
.
.

























































































